Einfamilienhaus in Hamburg Hochkamp

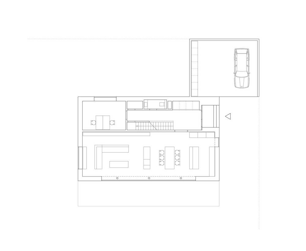
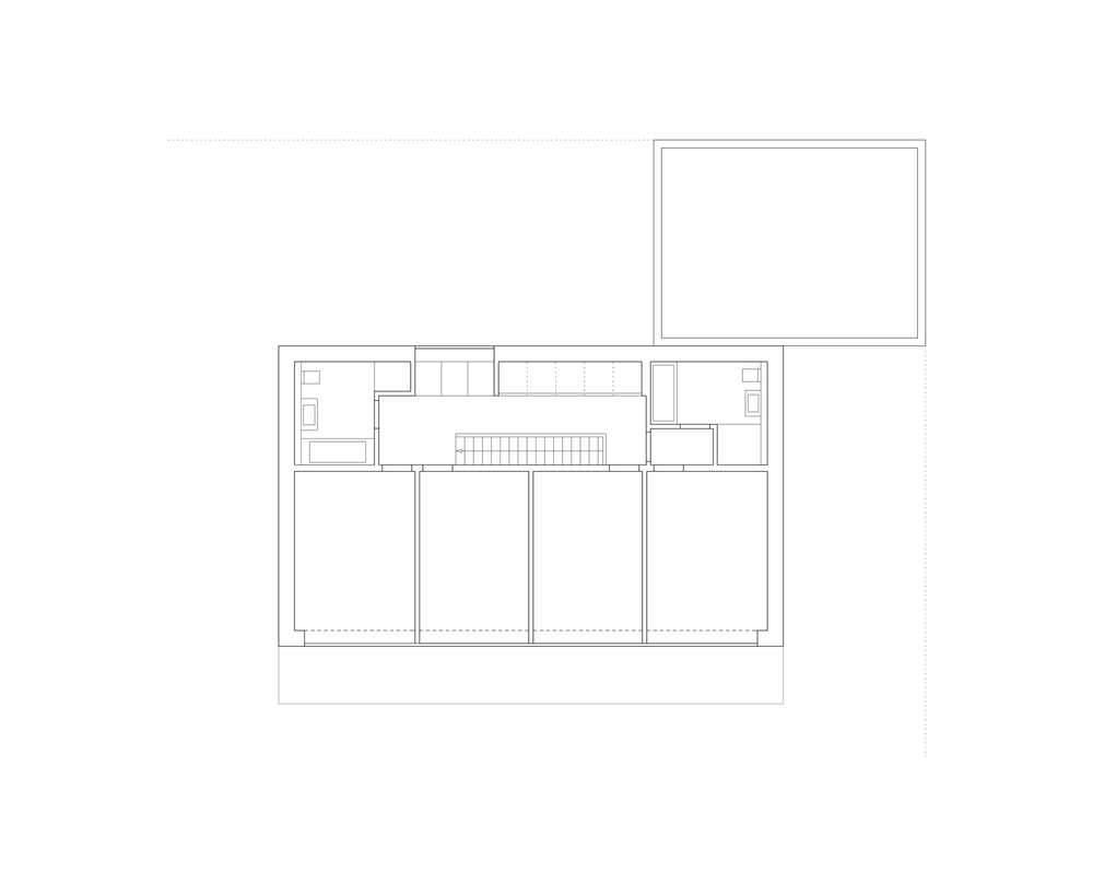
Das für eine fünfköpfige Familie geplante Einfamilienhaus befindet sich am Rande eines durch große, parkartige Gartengrundstücke geprägten Villengebietes im Hamburger Westen. Der zweigeschossige, kubische Baukörper passt sich in die Reihe der Nachbargebäude ein und besetzt so den rückwärtigen Teil des großzügigen Grundstückes. Dreiseitig relativ geschlossen und auf einzelne akzentuierte Blicke beschränkt, öffnet sich im Süden das Haus fast vollständig zum Garten. Im Erdgeschoss erstreckt sich der Raum für Wohnen, Kochen und Essen über die gesamte Breite des Baukörpers. Dieser ist nur durch einen frei stehenden Kamin gegliedert. Es entsteht der Eindruck einer nach Süden zum Garten hin geöffneten Halle, Garten und Gebäude verschränken sich zu einer Einheit. Der im rückwärtigen Teil gelegene Erschließungsbereich verbindet das Erdgeschoss mit den Individualräumen im Obergeschoss. Ein grauer, durchgefärbter, mineralischer Kratzputz und die dunklen großformatigen Metallfenster verleihen dem Haus einen eigenständigen Charakter und heben den Baukörper deutlich von seiner natürlichen, grünen Umgebung ab.

  • privat
  • LP 1-9 | 2011
  • 240 qm WFL