Neubau von drei Wohnhäusern in Hamburg Stellingen

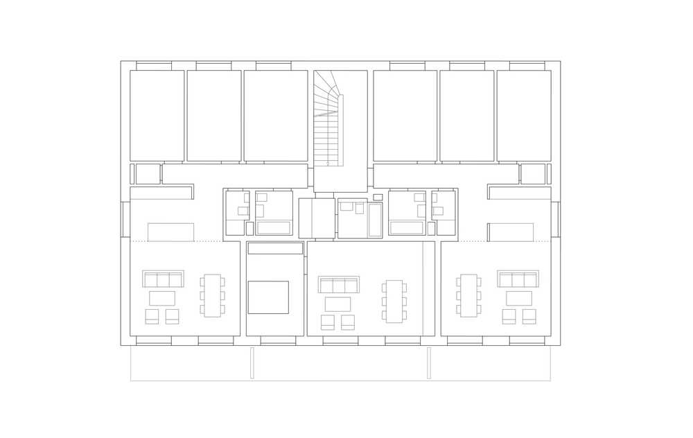
Die Wohnhäuser befinden sich in einer heterogenen Umgebung in Hamburg-Stellingen. Dieser Stadtteil ist geprägt durch zahlreiche Grünflächen, besonders durch den Tierpark Hagenbeck. So bilden auch die von uns geplanten Baukörper einen eigenen grünen Hofraum aus. Die drei nahezu identischen Mehrfamilienhäuser wurden im Effizienzhaus 55-Standard errichtet und verfügen jeweils über neun Wohnungen mit zwei bzw. vier Zimmern für Familien und Paare.

  • Stollhaus GmbH
  • LP 1-5 | 2010-2012
  • 27 WE | 2.180 qm WFL